55+ Condos

370 Underhill Avenue,
Yorktown Heights, NY 10598
(914) 662-0013

Welcome to The Parkside at Underhill Farms.

Discover effortless living, thoughtfully designed for adults 55+. The Parkside at Underhill Farms features elegant single-level residences in a building with convenient elevator access. Enjoy tranquil pond views and beautifully landscaped outdoor spaces that promote wellness and relaxation to the comfort of private community room to socialize with new friends. Choose from five two-bedroom, two-bathroom layouts ranging from 1,287 to 1,484 square feet, each offering open-concept interiors and oversized balconies. With its blend of ease, comfort, and sophistication, The Parkside is the ideal choice for downsizers or anyone seeking a refined, carefree lifestyle.

Community Amenities

  • Access to scenic walking paths and pond with gazebo & bridge
  • Clubhouse access planned (shared among residents)
  • Age-friendly elevators, covered entry areas, and gathering spaces
  • Quiet, low-maintenance living with lock-and-leave convenience
  • Walkable connection to downtown Yorktown Heights and planned on-site coffee shop

Condo Features

  • Effortless single-level living
  • Private balconies for outdoor relaxation & enjoyment
  • Convenient elevator building access for ease & accessibility
  • Open-concept kitchens with premium appliances & refined finishes
  • Spa-inspired bathrooms featuring walk-in showers
  • Elegant luxury plank flooring throughout the home
  • Spacious walk-in closets for comfort & organization

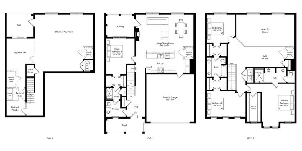
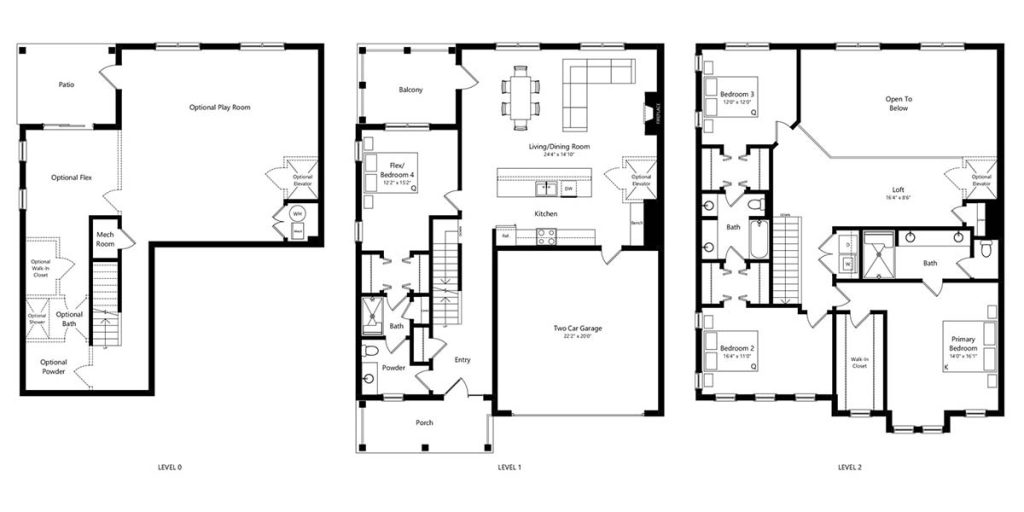
Trailside End

4 Bed

|

3 Bath

2,523 SQ FT

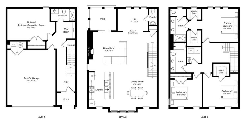
Townview Interior

3 Bed

|

2.5 Bath

2,514 SQ FT

Townview End

3 Bed

|

2.5 Bath

2,514 SQ FT

Trailside Interior

4 Bed

|

3 Bath

2,523 SQ FT

Townview w/ Optional Elevator

3 Bed

|

2.5 Bath

2,514 SQ FT

One Bed One Bath

1 Bed

|

1 Bath

729 SQ FT

One Bed One Bath

1 Bed

|

1 Bath

831 SQ FT

One Bed One Bath Den

1 Bed

|

1 Bath

863 SQ FT

One Bed One Bath Den

1 Bed

|

1 Bath

908 SQ FT

Two Bed Two Bath

2 Bed

|

2 Bath

1055 SQ FT

Two Bed Two Bath

2 Bed

|

2 Bath

1078 SQ FT

Two Bed Two Bath Den

2 Bed

|

2 Bath

1264 SQ FT

Two Bed Two Bath Den

2 Bed

|

2 Bath

1303 SQ FT

Three Bed Two Bath

3 Bed

|

2 Bath

1379 SQ FT

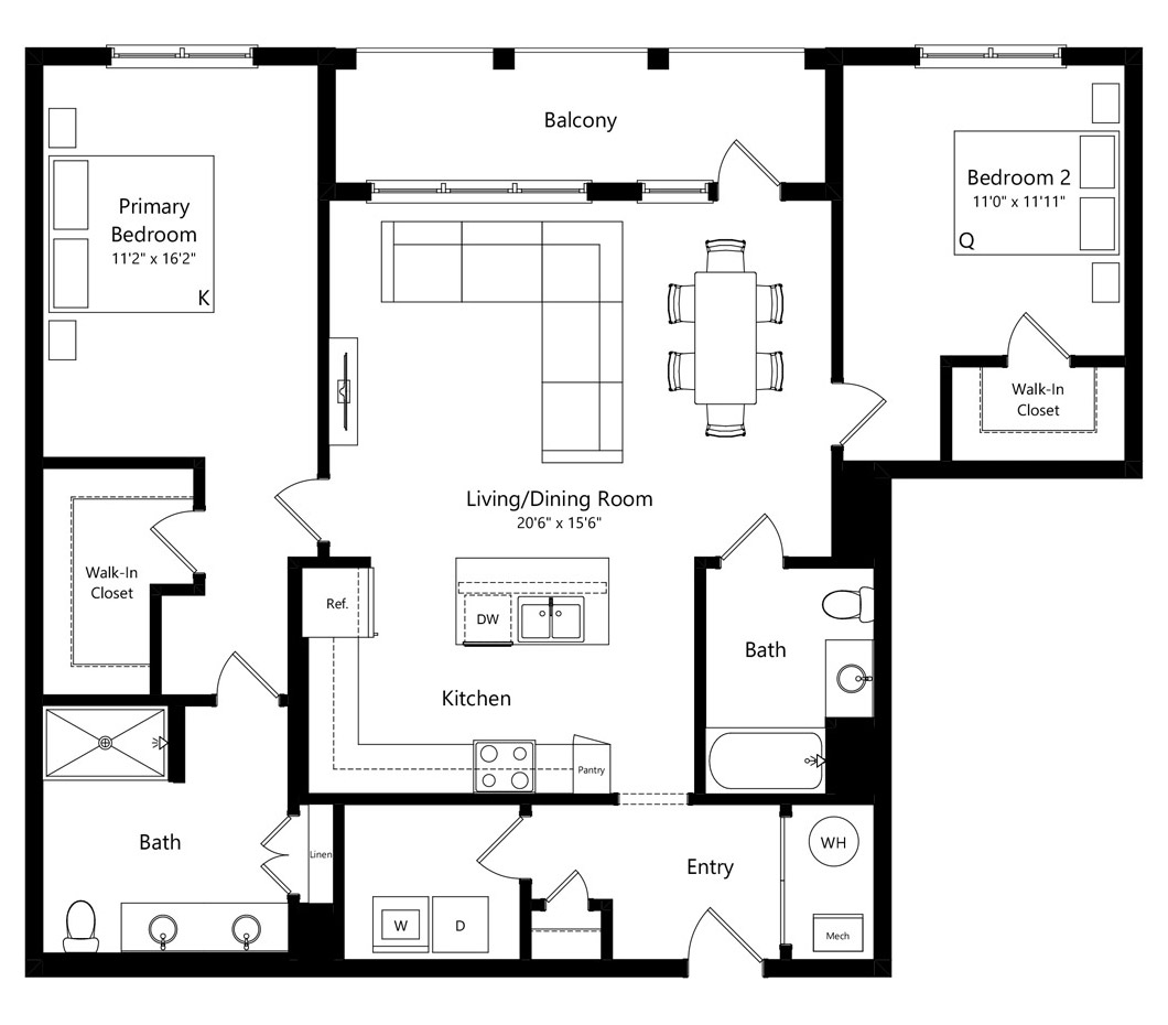
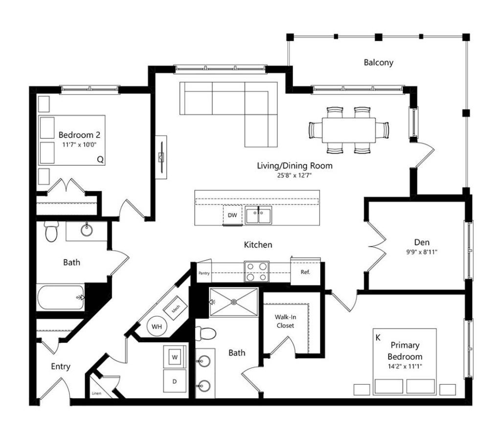
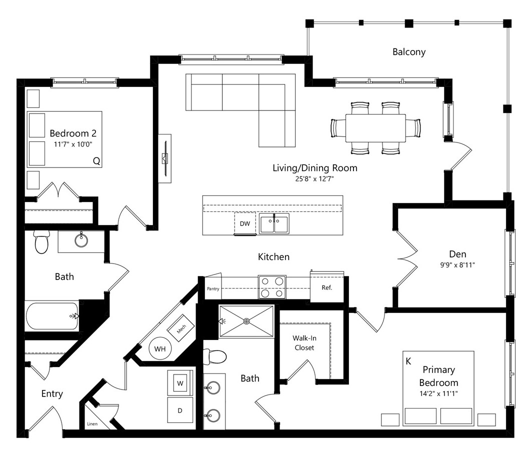
The Rochambeau

2 Bed

|

2 Bath

|

Den

1,468 SQ FT

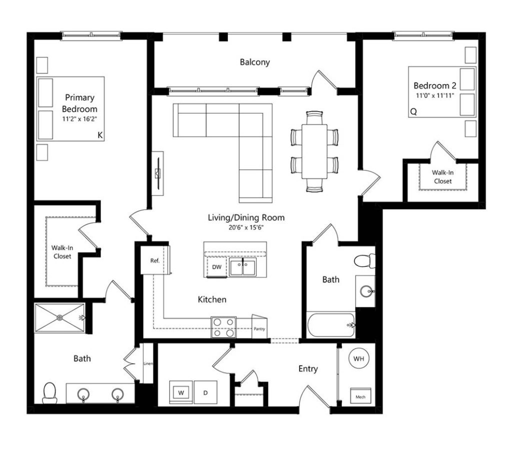
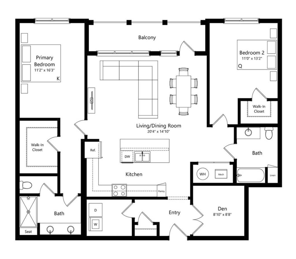
The Pinesbridge

2 Bed

|

2 Bath

1,316 SQ FT

The Mohansic

2 Bed

|

2 Bath

|

Den

1,484 SQ FT

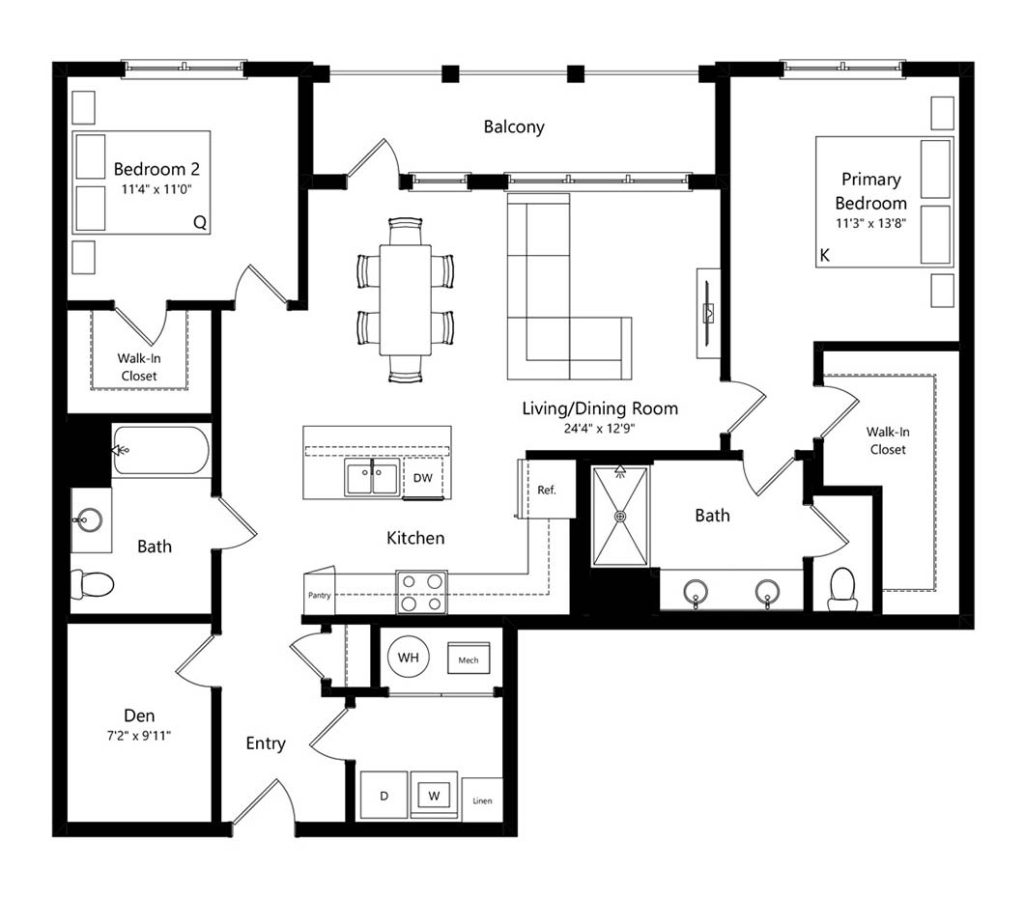
The Hanover

2 Bed

|

2 Bath

|

Den

1,372 SQ FT

The Highlands

2 Bed

|

2 Bath

|

Den

1,287 SQ FT

Get In Touch








    Address

    370 Underhill Avenue,
    Yorktown Heights, NY 10598
    (914) 662-0013
    Office Hours:

    The Rochambeau

    2 Bed

    |

    2 Bath

    |

    Den

    |

    1,468 SQ FT

    The Pinesbridge

    2 Bed

    |

    2 Bath

    |

    1,316 SQ FT

    The Mohansic

    2 Bed

    |

    2 Bath

    |

    Den

    |

    1,484 SQ FT

    The Hanover

    2 Bed

    |

    2 Bath

    |

    Den

    |

    1,372 SQ FT

    The Highlands

    2 Bed

    |

    2 Bath

    |

    Den

    |

    1,287 SQ FT